Casolare in Vendita a Monte San Vito
Classe energetica
EP glnr: 300.00 kwh/m²
RIF. 23_no01 - Monte San Vito (An) - Casolare di importanza storica con CORTE ESCLUSIVA.
Acquistare questo Casolare è acquistare un pezzo di storia. Diventerai proprietario di una parte di storia nobiliare che risale ai tempi del 1700. Questa struttura era una scuderia per i cavalli e ancor prima era una vecchia posta, quando i nobili vivevano in quella zona. Tutt'ora vicino al Casolare ci sono le proprietà nobiliari del tempo e sarai circondato anche da ulivi e colline vista MARE. Se i nobili hanno scelto proprio questo luogo e questa posizione, avete di sicuro gli stessi motivi per essere interessati al Casolare!
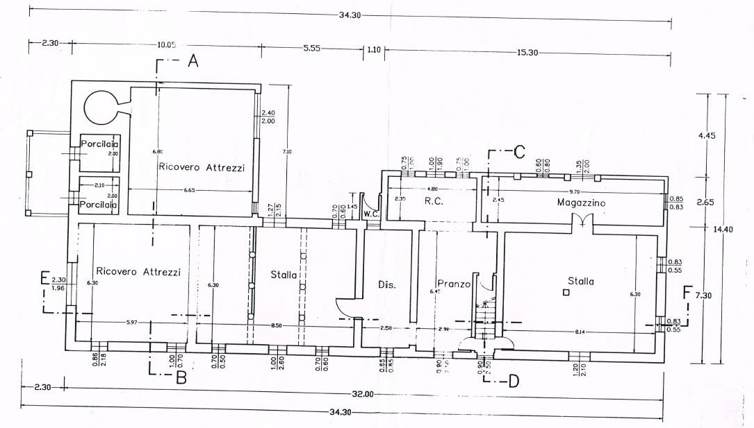
La superficie totale del Casolare misura 620mq ed è su due livelli. La corte esclusiva esterna misura 6700mq.
Dentro potrai ammirare archi e colonne e il fascino del tempo passato. Oltre a tutto questo hai una vista MARE che ti lascerà a bocca aperta.
Compralo per viverci, per farci una struttura ricettiva/turistica o per realizzare tutte le idee che hai da tempo in testa.
Chiama e fissa un appuntamento.
Classe Energetica in fase di elaborazione.
Per ulteriori informazioni scrivi a: info@animacasa.net o chiama il numero: 0719257795.
Visita il nostro sito internet www.animacasa.net
Contattaci
Anima Casa servizi immobiliari
via Umberto I n.2
Montemarciano (AN)
Telefono 0719257795
info@animacasa.net
Immobili simili
Ultimo aggiornamento 08-10-2025



















